Thursday, April 8, 2021

Master Bedroom Extension Ideas / Two Story Home Extension Concept Plans Building Costs Master Bedroom Plans Master Bedroom Addition Master Bedroom Layout : A small master bedroom doesn't have to be a problem.

Master Bedroom Extension Ideas / Two Story Home Extension Concept Plans Building Costs Master Bedroom Plans Master Bedroom Addition Master Bedroom Layout : A small master bedroom doesn't have to be a problem.. Most of the time, we easily get overwhelmed by the thought of having to move a huge furniture or simply the foresight of having to lose a huge amount of. Since it has a bigger space, sometimes, it is the room we are having trouble revamping with. Instead of placing the headboard against the bed. See more ideas about remodel bedroom, bedroom design, master bedroom remodel. Neutral bedroom ideas and updates.

From modern to rustic, we've rounded up beautiful bedroom decorating inspiration for your master suite. See more ideas about master bedroom plans, master bedroom layout, bedroom addition. See more ideas about remodel bedroom, bedroom design, master bedroom remodel. In an ideal world, your master bedroom would have more than enough room for a large bed flanked by two matching nightstands, a dressing area with armoire, and a lounge chair or two for your morning coffee. Sleep is a vital process to restore ourselves and a good night's sleep begins in an inviting bedroom.

14 Best Small Master Bedroom Design Ideas For Maximising Space Style Degree
14 Best Small Master Bedroom Design Ideas For Maximising Space Style Degree from styledegree.sg
From statement lighting that sets a relaxing mood to a few strategically placed plants, the suggestions that follow are easy to execute. Whether you crave a serene retreat or a colorful oasis, you'll find plenty of inspiration for your own master bedroom. Some of the people may think that a master bedroom. Spare no expense and do not compromise with your master bedroom ideas and designs. Master bedroom design ideas, tips & photos for decorating and styling a beautiful master bedroom. Where actual items were no longer available, i've adding pops of color to a serene white bedroom. Firstly, can you deviate from a developmental plan? Sometimes the bed linens can bring the colour in your bedroom.

Basement master bedroom suite ideas.

If you love the idea of having both a vanity area and a nightstand, set a console table right next to your bed. All the bedroom design ideas you'll ever need. By definition, the master bedroom is usually the largest one in the house but there are also other elements that capture the essence of the concept. While it is the most overlooked room simply because nobody sees it but you, the contrary is true. Even when you've spent many hours decorating your master bedroom, it can start feeling a little stale after a bit of time. Check out that beautiful king size bed with cream plush headrest, white comforter and a variety of light tan, brown and white pillows. One of the ways to experience good sleep is through a pleasant master. Bedroom apartment home bedroom master bedroom bed furniture furniture design morden bedroom bungalow interiors bedroom bed design headboards for beds. That's when the power of a quick refresh comes in. Refresh your home with luxury bed linen ideas. It's all about choosing the right colors for your space. Need some master bedroom design ideas? Spare no expense and do not compromise with your master bedroom ideas and designs.

See more ideas about master bedroom, home bedroom, bedroom inspirations. Today we highlight four creative style solutions that can enhance any master bedroom. Try our tips and tricks for creating a master bedroom that's truly a relaxing retreat. Check out master bedroom decor ideas and insporations here. These master bedroom ideas and design tips create the perfect space for escaping from the cares of the waking world.

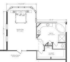
Changing Your Home Floor Plan Home Extensions Home Addition Costs
Changing Your Home Floor Plan Home Extensions Home Addition Costs from www.remodelingimage.com
A combination of modern & farmhouse master bedroom ideas simple color accent wall to create luxury romantic purple blue grey on large layout. Sometimes the bed linens can bring the colour in your bedroom. These spaces are filled with bedroom ideas for every style, each filled with decorating tips and tricks. Check out that beautiful king size bed with cream plush headrest, white comforter and a variety of light tan, brown and white pillows. Master bedrooms sometimes double as living spaces, especially when space in your home is tight, so if include your master bath when you're ready to decorate or redecorate your master bedroom. Firstly, can you deviate from a developmental plan? Some of the people may think that a master bedroom. Even when you've spent many hours decorating your master bedroom, it can start feeling a little stale after a bit of time.

Science proves that a night of good sleep is all that we take to recharge energy, release tension and provide a good mood for the next day.

If the master bedroom of yours doesn't give you the luxuries of a peaceful seaside paradise, its time you let lose the imaginations of yours and get ready to place in several initiatives to produ. From modern to rustic, we've rounded up beautiful bedroom decorating inspiration for your master suite. Sleep is a vital process to restore ourselves and a good night's sleep begins in an inviting bedroom. Bedroom themes bedroom decor casamance luxurious bedrooms luxury bedrooms modern bedrooms elegant. By definition, the master bedroom is usually the largest one in the house but there are also other elements that capture the essence of the concept. Firstly, can you deviate from a developmental plan? Try our tips and tricks for creating a master bedroom that's truly a relaxing retreat. But typically, when we say a room is luxurious, we mean that a room is outfitted with the finest decor, is. See how to bring together bedroom furniture, bedding, wall color. These spaces are filled with bedroom ideas for every style, each filled with decorating tips and tricks. Some of the people may think that a master bedroom. Most of the time, we easily get overwhelmed by the thought of having to move a huge furniture or simply the foresight of having to lose a huge amount of. A combination of modern & farmhouse master bedroom ideas simple color accent wall to create luxury romantic purple blue grey on large layout.

I know it is the most important of all rooms, as you host your guests there, but by the time you plan to remodel the master bedroom you either run out of budget or you just decorate around the usual. Sleep is a vital process to restore ourselves and a good night's sleep begins in an inviting bedroom. To get the look, click on the items below for direct links to the products. All the bedroom design ideas you'll ever need. If the master bedroom of yours doesn't give you the luxuries of a peaceful seaside paradise, its time you let lose the imaginations of yours and get ready to place in several initiatives to produ.

26 House Extensions Best House Extension Ideas For Every Budget Real Homes
26 House Extensions Best House Extension Ideas For Every Budget Real Homes from cdn.mos.cms.futurecdn.net
Are you searching for bedroom makeover ideas ? Try our tips and tricks for creating a master bedroom that's truly a relaxing retreat. Many attractive bed and bath coordinates are available. Based on the principles from. By definition, the master bedroom is usually the largest one in the house but there are also other elements that capture the essence of the concept. A combination of modern & farmhouse master bedroom ideas simple color accent wall to create luxury romantic purple blue grey on large layout. That's when the power of a quick refresh comes in. Get to know about the bedroom extension design ideas from the gbs architecture.

The most unique master bedroom design ideas for 2021.

Whether you crave a serene retreat or a colorful oasis, you'll find plenty of inspiration for your own master bedroom. Most of the time, we easily get overwhelmed by the thought of having to move a huge furniture or simply the foresight of having to lose a huge amount of. The master bedroom is usually the biggest room in a home. Learn more about behr's new year's inspiration with this paint color, midnight in the tropics. See more ideas about bathroom interior design, bathroom interior, bathroom design. That's when the power of a quick refresh comes in. Some of the people may think that a master bedroom. Sometimes the bed linens can bring the colour in your bedroom. Spare no expense and do not compromise with your master bedroom ideas and designs. See more ideas about remodel bedroom, bedroom design, master bedroom remodel. Based on the principles from. These are some beautiful bedrooms filled with great ideas for making the most of a small space. Master bedroom design ideas, tips & photos for decorating and styling a beautiful master bedroom.

No comments:

Post a Comment

Tiled Bedroom Floor Ideas : Image result for marble floor living room idea | Living ... / Best ideas for every room.

Tiled Bedroom Floor Ideas : Image result for marble floor living room idea | Living ... / Best ideas for every room. . Photo credit ale...