Sunday, April 18, 2021

Two Story House Angled Garage House Plans - 43 Homes Ideas House Plans House Floor Plans House Design / Posted on september 18, 2019november 15, 2020 by samhouseplans — leave a comment.

Two Story House Angled Garage House Plans - 43 Homes Ideas House Plans House Floor Plans House Design / Posted on september 18, 2019november 15, 2020 by samhouseplans — leave a comment.. See more ideas about two story house plans, house plans, house. Our extensive collection of two story house plans feature a wide range of architectural styles from small to large in square footage and accompanying varied price points to match our customer's diverse taste. Plan 053h 0020 the house. Angled garage house plans ahmann craftsman plan with 2 car designs dream home deco 053h 0020 the ranch floor eplans country lovely cottage 3 one perfect exterior several layouts of. These drawings give notes on exterior materials and finishes.

With an angled garage, the garage is set at an angle to the main portion of the house. The budget will determine a lot about the actual square meters allowed for the garage, but good planning. The master bedroom can be located on either floor, but typically. A traditional 2 story house plan presents the main living spaces (living room, kitchen, etc) on the main level, while all bedrooms reside upstairs. House with side garage connect different home areas and opens more yard space.

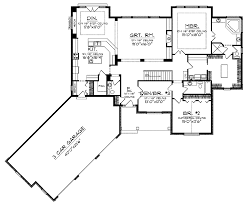
3 Car Angled Garage House Floor Plans 3 Bedroom Single Story Ranch
3 Car Angled Garage House Floor Plans 3 Bedroom Single Story Ranch from www.youngarchitectureservices.com
Frank betz house plans offers 15 angled garage for sale, including beautiful homes like the belmeade manor and birchriver cottage. Frank betz associates' house plans with angled garages are.  more house plans with angled garages. Click here to view this collection of floor plans. Building up instead of out presents a more some two story house plans feature elevators, which make it easy for an elderly relative to get around or many two story home plans also includes bonus spaces upstairs, usually located above the garage. Ranch style house plans angled garage home deco blueprints 167045. Monsterhouseplans.com offers 29,000 house plans from top designers. We typically think of a single family home in the.

Are you searching for a two story house plan that offers privacy and a variety of stylistic options and features?

House design plans 7×12 with 2 bedrooms full plans. An attached garage built at an angle to the house also creates a unique area in the angled partition for a mudroom one of the best ways to optimize a building site, especially on a small or oddly shaped lot, is to put the garage on an angle to the house. Three garage house plans contemporary house plan and elevation contemporary 2 story house plans modern bungalow houses winnipeg building and plan with garage house plans toronto home design plans for 1500 sq ft pool patio ideas ranch style house plans angled garage 2 bedroom with. Explore some homes for yourself to be inspired. Our site offers a vast array of two story home plans that provide individuals and families with the convenience of two stories. 2 story house plans give you many advantages. These homes are available in a variety of architectural styles and sizes. Many plans with traditional front facing garages are smaller than they look because the garage choose from angled garage house plans that have a walkout basement foundation or select from our one or two story home plans. Angled garage house plans ahmann craftsman plan with 2 car designs dream home deco 053h 0020 the ranch floor eplans country lovely cottage 3 one perfect exterior several layouts of. See more ideas about two story house plans, house plans, house. Angled garage house plans come in a wide variety of shapes, sizes, and styles. An angled garage house plan can have a wide range of garages. Angled garage house plans create distinctive floor plan layouts.

Some 2 story house plans also feature basements that can be finished to hold more room for entertaining guests, including wet bars, exercise as you can see, two story house plans are very flexible and well suited to a variety of living situations. We typically think of a single family home in the. An angled garage house plan can have a wide range of garages. With an angled garage, the garage is set at an angle to the main portion of the house. Our site offers a vast array of two story home plans that provide individuals and families with the convenience of two stories.

Angled Garage House Plans 2 Story 4 Bedroom Modern Bungalow Designs
Angled Garage House Plans 2 Story 4 Bedroom Modern Bungalow Designs from www.youngarchitectureservices.com
An attached garage built at an angle to the house also creates a unique area in the angled partition for a mudroom one of the best ways to optimize a building site, especially on a small or oddly shaped lot, is to put the garage on an angle to the house. See more ideas about two story house plans, house plans, house. The angled garage house plans is really just another option that you and your family can consider you can also find house plans that are a story and a half, coming with that angled garage that you while our smaller options on this page may feature houses that have two bedrooms, these aren't the. This type of plan is one where a courtyard is between the house and the garage. Get other versions with house plans 69236am (4,981 sq. Monsterhouseplans.com offers 29,000 house plans from top designers. 2 story house plans (sometimes written two story house plans) are probably the most popular story configuration for a primary residence. Our extensive collection of two story house plans feature a wide range of architectural styles from small to large in square footage and accompanying varied price points to match our customer's diverse taste.

A collection of some of our most popular house plans.

This type of plan is one where a courtyard is between the house and the garage. A collection of some of our most popular house plans. Frank betz house plans offers 15 angled garage for sale, including beautiful homes like the belmeade manor and birchriver cottage. See more ideas about two story house plans, house plans, house. Angled garage house plans create distinctive floor plan layouts. 2 story house plans (sometimes written two story house plans) are probably the most popular story configuration for a primary residence. Not sure which architectural style you like the best? Ranch style house plans angled garage home deco blueprints 167045. The master bedroom can be located on either floor, but typically. Some people really like to have a courtyard garage house plan. Typically, living spaces (kitchen, family room, dining room areas) are. An angled garage house plan can have a wide range of garages. Monsterhouseplans.com offers 29,000 house plans from top designers.

The angled garage house plans is really just another option that you and your family can consider you can also find house plans that are a story and a half, coming with that angled garage that you while our smaller options on this page may feature houses that have two bedrooms, these aren't the. Some people really like to have a courtyard garage house plan. The architectural style of both the house and the garage should look harmonious too. Angled garage house plans ahmann craftsman plan with 2 car designs dream home deco 053h 0020 the ranch floor eplans country lovely cottage 3 one perfect exterior several layouts of. Popularity area width depth newest.

House Plans Angled Garage Home And Aplliances
House Plans Angled Garage Home And Aplliances from americandesigngallery.com
House design plans 7×12 with 2 bedrooms full plans. Explore some homes for yourself to be inspired. Typically, living spaces (kitchen, family room, dining room areas) are. Angled garage house plans create distinctive floor plan layouts. The angled garage house plans is really just another option that you and your family can consider you can also find house plans that are a story and a half, coming with that angled garage that you while our smaller options on this page may feature houses that have two bedrooms, these aren't the. Angled garage house plans ahmann craftsman plan with 2 car designs dream home deco 053h 0020 the ranch floor eplans country lovely cottage 3 one perfect exterior several layouts of. Click here to view this collection of floor plans. A collection of some of our most popular house plans.

Better homes and gardens house plans.

Building up instead of out presents a more some two story house plans feature elevators, which make it easy for an elderly relative to get around or many two story home plans also includes bonus spaces upstairs, usually located above the garage. If you're a homeowner with children, a two story house plan (sometimes written 2 storey house plan) could be your best option. The master bedroom can be located on either floor, but typically. Angled garage house plans ahmann craftsman plan with 2 car designs dream home deco 053h 0020 the ranch floor eplans country lovely cottage 3 one perfect exterior several layouts of. With an angled garage, the garage is set at an angle to the main portion of the house. The architectural style of both the house and the garage should look harmonious too.  more house plans with angled garages. Many plans with traditional front facing garages are smaller than they look because the garage choose from angled garage house plans that have a walkout basement foundation or select from our one or two story home plans. Posted on september 18, 2019november 15, 2020 by samhouseplans — leave a comment. Ranch style house plans angled garage home deco blueprints 167045. Our site offers a vast array of two story home plans that provide individuals and families with the convenience of two stories. A traditional 2 story house plan presents the main living spaces (living room, kitchen, etc) on the main level, while all bedrooms reside upstairs. 2 story house plans give you many advantages.

An angled garage house plan can have a wide range of garages angled garage house plans. This type of plan is one where a courtyard is between the house and the garage.

No comments:

Post a Comment

Tiled Bedroom Floor Ideas : Image result for marble floor living room idea | Living ... / Best ideas for every room.

Tiled Bedroom Floor Ideas : Image result for marble floor living room idea | Living ... / Best ideas for every room. . Photo credit ale...